Raum
Raum
Raum
Flur
Flur
Treppenhaus
WC
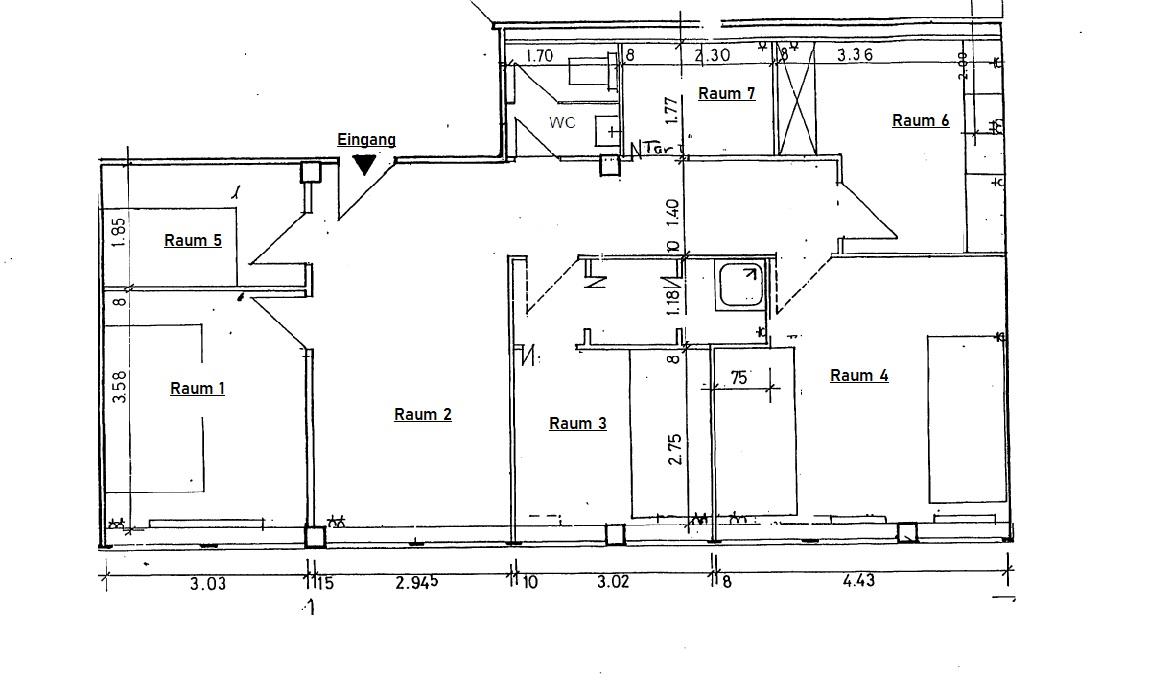
Grundriss

Attraktive Büro- und Praxisfläche mit flexiblem Grundriss

(KALT-) MIETE 1.400,00
  • 4
  • 94 m2
  • 1

Adresse
22049 Hamburg
Deutschland
Objekt Nr.
7180-A
Typ
Bürofläche
Provision/Courtage
3 x Bruttomiete zzgl. 19 % MwSt.

Objektbeschreibung

Die zur Vermietung stehende Gewerbefläche mit ca. 94 m² befindet sich im 1. Obergeschoss eines gepflegten Gebäudes. Sie eignet sich hervorragend als Praxis oder Büro und überzeugt durch eine flexible Raumaufteilung.

Insgesamt stehen 7 Räume zur Verfügung:

Raum 1–4:
helle Zimmer mit Fenstern, ideal als Behandlungs- oder Büroräume nutzbar.

Raum 5–7:
Räume ohne Fenster, die sich gut als Lager, Archiv oder Nebenräume eignen.

Raum 2 kann bei Bedarf wieder unterteilt werden, sodass ein zusätzliches, separat nutzbares Zimmer entsteht.

Ein modern gefliestes WC, ein Duschbereich sowie ein separater Warte- oder Empfangsbereich ergänzen die Fläche.

Die Räume sind mit pflegeleichtem Fliesenboden ausgestattet und bieten eine neutrale, helle Gestaltung, die individuell an die eigenen Bedürfnisse angepasst werden kann.

- Miete: inkl. Umsatzsteuer
- Stellplätze optional: 50 € / Monat pro Stellplatz
- Verfügbar: ab sofort

Die angebotene Fläche bietet optimale Voraussetzungen für eine Praxis, ein Büro oder andere Dienstleistungsnutzungen. Dank der hellen Räume, der flexiblen Grundrissgestaltung und der guten Erreichbarkeit ist dies ein attraktiver Standort für Selbstständige und Unternehmen.

Ausstattung

- 7 flexibel nutzbare Räume
- Fenster in Raum 1–4
- Dusche und WC
- Heller Wartebereich
- Fliesenboden
- Mietfläche: ca. 94 m²
- Obergeschoss (kein Fahrstuhl)
- Optional können bis zu 3 Stellplätze direkt am Objekt angemietet werden (je 50 € / Monat).

Energie & Heizung

Lage

Die Immobilie befindet sich in einem lebendigen Stadtteil Hamburgs, der sich durch eine hervorragende Infrastruktur und eine gute Anbindung an den öffentlichen Nahverkehr auszeichnet. In unmittelbarer Umgebung finden sich zahlreiche Geschäfte des täglichen Bedarfs, gastronomische Angebote sowie diverse Dienstleistungsbetriebe. Dadurch ist eine hohe Frequenz und Sichtbarkeit gewährleistet, was die Fläche sowohl für eine Praxisnutzung als auch für ein Büro attraktiv macht.

Die Anbindung an Bus- und U-Bahnlinien ist fußläufig in wenigen Minuten erreichbar, sodass sowohl Mitarbeitende als auch Kundinnen und Kunden die Räumlichkeiten bequem erreichen können. Zudem besteht eine gute Verbindung zu den wichtigen Verkehrsachsen, was die Erreichbarkeit auch mit dem PKW erleichtert. Öffentliche Parkmöglichkeiten sind in der näheren Umgebung vorhanden.

Der Standort überzeugt durch seine zentrale, aber dennoch ruhige Lage und bietet damit ein professionelles Umfeld für unterschiedlichste Nutzungen im Bereich Büro oder Gesundheitswesen.

Google Maps

Hiermit akzeptiere ich die von mir zur Kenntnis genommene Datenschutzerklärung über Google Maps um die interaktive Karte anzusehen. Mit Ihrer Einwilligung verarbeiten wir Ihre Daten gemäß Artikel 6 Abs. 1 lit. A DSGVO.

Anbieter kontaktieren

Bama Immobilien - Immobilienanfrage

Allgemeines
Nachricht

Frau Jasmin Maleki

00491796728571

Holzdamm 53
20099 Hamburg